4 Northcrest Drive
$899,900
4 Northcrest Drive
Weaverville, NC 28787
Property Type
Commercial Sale
Year Built
1888
Lot Size
Garage

About This Property

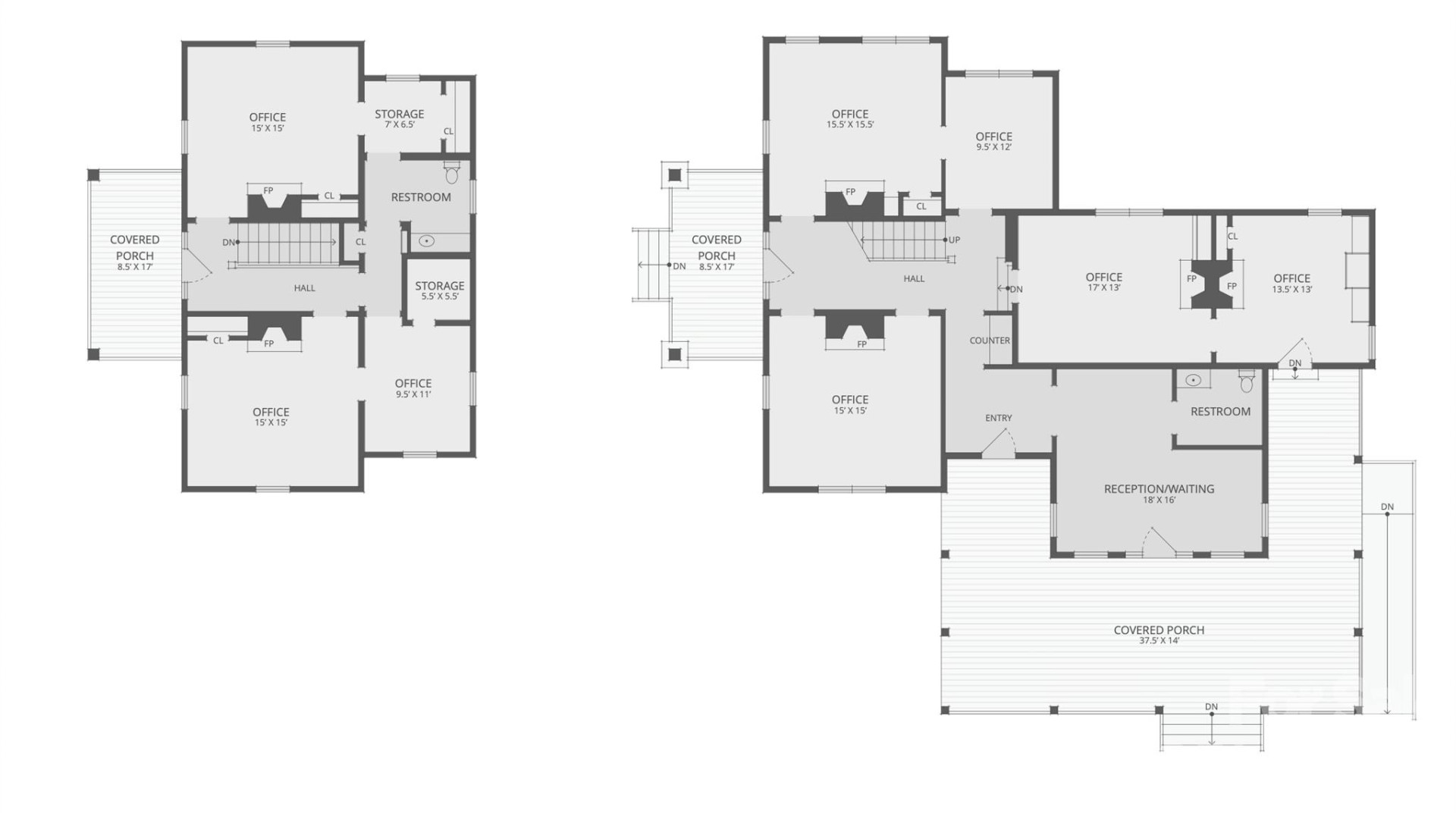
Positioned at the corner of Northcrest Road and Monticello Road on a busy 8,000cpd lot near Walmart and Lowe's, 4 Northcrest Drive sits at the epicenter of Weaverville's rapidly expanding commercial and medical corridor. With AdventHealth's 67-bed hospital now fully cleared for construction just minutes away, this asset represents one of Western North Carolina's most significant healthcare-driven growth opportunities. Investors gain access to a stabilized, passive NNN income stream with the security of an excellent tenant showing pride of business ownership, built in rental escalations and strong future marketability. The building offers 2700 rentable sq.ft., 8 offices and 2 bathrooms, a 13 car parking lot, a new metal roof and HVAC systems replaced within the last few years, and a well maintained exterior including attractive landscaping. NOI is currently $56,700 and increases to $58,600 in November. Lease rate is currently $21/sf and TICAMs are $3/sf.

Property Details

Interior

Stories
2

Exterior & Lot

Year Built
1888

Location

County
Buncombe
ZIP Code
28787

Financial

Listing Terms
Cash, Conventional

Utilities

Utilities
Electricity Connected
Sewer
Public Sewer

Schools

Patio & Porch Features

Front Porch, Side Porch, Wrap Around

Lot Features

Corner Lot, Level

Location

Listing Information

MLS #
CAR4360266
Listing Agent
Jake Mossman
Listing Office
Keller Williams Professionals
Listed Date
Apr 14, 2026
Susan Young
Susan Young
Realtor®, Broker Associate

Contact Susan Young About This Property

Interested in 4 Northcrest Drive? Send us a message and we'll get back to you.

Your information will be kept confidential and used only to respond to your inquiry.